Services Our Process About Request a Quote
← Back to Services

Measured Building
Surveys

Accurate floor plans, elevations, sections and roof plans for residential and commercial properties — delivered to a professional standard for design, planning and construction.

Request a Quote FAQs
DWG
CAD Output
PDF
Print-Ready
1:50
Typical Scale
5+
Drawing Types
Fast
Turnaround
Measured Building Survey

Add photo: mbs-hero.jpg

Recommended 1400 x 600px

Professional measured building survey in progress — accurate floor plans, elevations and sections delivered for design and planning.

Floor Plans Elevations Sections DWG Output

What is a Measured Building Survey?

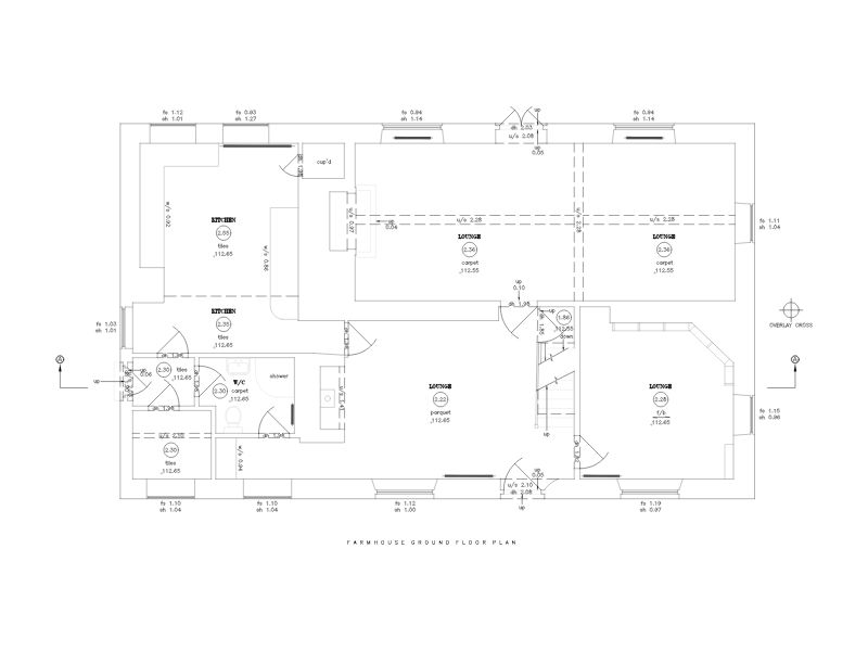
A measured building survey records the physical layout and geometry of an existing building. It captures accurate dimensions, structural features and key elements to create a reliable base for design, planning and construction work.

This information is typically used by architects, designers, engineers and contractors at early project stages to ensure any proposed works are based on verified, accurate existing conditions. Without an accurate measured survey, design decisions are made on assumptions — a measured building survey removes that risk entirely.

What We Can Provide

Our measured building surveys are tailored to suit the specific requirements of each project. Depending on your needs, we can provide:

  • Existing floor plans showing room layouts, wall thicknesses and key features
  • Elevations showing external building features, openings and heights
  • Sections to illustrate internal layouts and level changes
  • Roof plans where required for planning or design use
  • Floor-to-ceiling heights and level information throughout
  • Clearly identified doors, windows and openings with sizes
  • Key structural elements captured as part of the survey
  • Reflected ceiling plans where required

Deliverables are agreed at the outset to ensure survey information is appropriate for its intended use.

What We Survey

  • Residential properties — houses, apartments and flats
  • Commercial buildings — offices, retail, mixed-use
  • Industrial units and warehouses
  • Listed and historic buildings requiring careful survey methodology
  • Refurbishment and retrofit projects
  • Educational and institutional buildings

Our Surveying Process

1

Fast, Accurate Data Collection

We carry out efficient on-site surveys using appropriate surveying methods and modern equipment to capture accurate measurements with minimal disruption. The survey approach — whether traditional measurement, digital tools or laser scanning — is selected to suit the building type, access and required level of detail.

2

Data Analysis & Quality Assurance

Survey data is carefully processed, checked and validated to ensure accuracy, consistency and completeness before any drawings are produced. Our quality control stage cross-checks measurements and identifies any discrepancies before they reach your drawings.

3

Fast, Reliable Delivery

Final CAD drawings are produced using professional workflows and issued in agreed formats within clear timescales. All drawings are clearly annotated, correctly scaled and structured for immediate use in design and planning software.

CAD & Drawing Standards

All drawings are produced to a professional standard and structured to integrate directly into your existing project files without the need for significant rework. Our standard CAD output includes:

  • Clean, logical layer structure throughout
  • Correct line weights for print and screen use
  • Clear annotation with room names, dimensions and levels
  • Scaled layouts suitable for planning and construction use
  • Compatible with AutoCAD and BricsCAD workflows

Why Choose SurveyX

Accuracy-Led Approach

Accuracy is at the core of every survey we undertake. We use appropriate surveying methods and thorough quality checks to ensure the information provided is reliable and fit for purpose.

Industry-Standard Workflows

All drawings are produced using professional CAD systems fully compatible with AutoCAD and BricsCAD, ensuring seamless integration into established design workflows.

Clean, Usable Deliverables

We focus on producing well-structured drawings ready for immediate use — reducing the time your team spends cleaning or reworking files before design can begin.

Efficient Turnaround Times

Streamlined surveying and production processes allow us to deliver survey drawings promptly without compromising on quality or accuracy.

Experience Across Varied Projects

We have experience across a wide range of residential and commercial building types, adapting our approach to suit different access constraints, building ages and project requirements.

In Depth

What is a Measured Building Survey?

A measured building survey records the physical layout and geometry of an existing building in precise detail. Using calibrated measuring equipment and professional surveying techniques, we capture accurate dimensions, structural features and all key building elements to create a verified, reliable base for any design, planning or construction project.

The survey produces a complete set of drawings representing the building as it exists — not as it was originally designed or built. Over time, buildings change: walls are moved, openings are altered, additions are made. A measured building survey captures the building as it actually stands today, giving your design team verified information to work from rather than guesswork.

This is the standard starting point for virtually any project involving an existing building — from a simple extension to a major refurbishment or change of use.

How We Capture Your Building

Our measured building surveys use a combination of modern measurement tools and professional CAD production to deliver drawings that meet the standards expected by architects, planning authorities and construction teams.

Measurement methodology

We use a combination of hand measurement, digital measuring devices and — where required — 3D laser scanning with the Leica BLK360 to capture building dimensions accurately. The method is selected based on building complexity, access and required level of detail.

CAD production

All drawings are produced in professional CAD software (AutoCAD / BricsCAD) with clean layer structure, correct line weights and clear annotation. Files are delivered in DWG and PDF format and are ready to use in your design workflow without rework.

Accuracy and checking

Survey data is cross-checked before drawings are produced. Dimensions are verified against each other at multiple points to identify and resolve any inconsistencies — a quality assurance step that protects the integrity of every drawing we issue.

Scales and standards

Drawings are typically produced at 1:50 for floor plans and sections, and 1:100 for elevations. We follow recognised surveying and drawing standards and can adapt to specific requirements from your project team or planning authority.

Coordinate control

Where required, surveys can be tied to Ordnance Survey National Grid coordinates and OS datum, ensuring your building drawings align with site surveys and wider development data.

Delivery formats

All drawings are issued as both DWG (for use in CAD and design software) and PDF (for printing, sharing and planning submissions). Additional formats such as IFC or DXF can be provided on request.

Why Commission a Survey

The Value of Getting It Right

01

Eliminate uncertainty

Design decisions made from accurate survey data are reliable. Without it, even small errors in assumed dimensions can cause significant and costly problems during construction.

02

Reduce design risk

Accurate existing condition drawings allow your design team to identify constraints, clashes and opportunities early — before they become expensive problems on site.

03

Support planning

Planning applications typically require accurate existing and proposed drawings. A professional measured survey provides the compliant base drawings needed for a successful submission.

04

Speed up design

A complete set of survey drawings eliminates the need for your design team to measure the building themselves, saving time and allowing design work to begin immediately.

05

Protect your budget

Unforeseen conditions during construction are a leading cause of budget overruns. Accurate survey data reduces the risk of costly surprises when work begins on site.

06

Create a permanent record

Survey drawings remain a valuable asset long after the project is complete — for facilities management, future works, insurance and asset records.

What Goes Wrong Without a Proper Survey

Skipping or cutting corners on a measured survey is a false economy. Here are the most common problems that arise when projects start without accurate existing condition data.

Working from outdated drawings

Relying on original architectural drawings or planning documents is risky — buildings rarely match their original drawings exactly. Alterations, repairs and natural movement all change dimensions over time.

Self-measuring without the right tools

Tape measure surveys carried out by non-surveyors routinely contain errors. Even small inaccuracies compound across a building and can result in design elements that simply do not fit on site.

Assuming dimensions from photos

Photographs cannot provide accurate dimensions. Perspective distortion and lens effects make photographic measurement unreliable and unsuitable as a basis for design.

Discovering problems during construction

If existing conditions are not properly understood before design, problems frequently emerge during construction — when they are most expensive and disruptive to resolve.

Planning application delays

Inaccurate or incomplete existing drawings are a common cause of planning application rejection or the requirement for costly amendments before re-submission.

Pricing Guidance

What Affects the Cost

The cost of a measured building survey depends on a number of factors specific to your building and project. We provide clear, competitive quotes tailored to each job — there are no hidden fees.

Building size

Larger buildings with more rooms, floors and features take longer to survey and produce more drawings — the most significant factor in survey cost.

Number of drawing types

A floor-plan-only commission costs less than a full package including elevations, sections, roof plan and levels. We agree the scope upfront so you only pay for what you need.

Building complexity

Irregular geometry, multiple split levels, complex roofs and restricted access all add time. Historic or listed buildings often require more care and additional methodology.

Use of laser scanning

Where 3D laser scanning is required — for complex geometry, heritage buildings or high-accuracy requirements — this adds to the cost but significantly increases accuracy and completeness.

Location and access

We travel UK wide for every project. Travel costs are included in our quote — no hidden charges for distance.

Turnaround time

Standard turnaround is 5–10 working days from survey. Faster delivery can be accommodated — please mention your deadline when enquiring.

Get a clear quote

Tell us about your building and project and we'll provide a straightforward quote with no obligation. Most enquiries are responded to within 1 working day.

Request a Free Quote
Who This Service Is For

Built for Your Workflow

Architects

Accurate base drawings to begin design from — no assumptions, no rework.

Developers

Reliable existing condition drawings to inform feasibility and design briefs.

Engineers

Dimensionally accurate plans and sections to support structural analysis.

Contractors

Pre-construction surveys to confirm existing conditions before works begin.

Property Professionals

Accurate floor plans for marketing, valuation and asset management.

Planning Consultants

Survey drawings prepared to suit planning authority requirements.

Common Applications

When You Need a Measured Survey

Measured building surveys are required at many stages of a project. Here are the most common scenarios where accurate survey drawings make a real difference.

Planning Applications

Local planning authorities typically require accurate existing and proposed drawings. A measured building survey provides the reliable base drawings needed for a complete planning submission.

Refurbishment & Extensions

Before any refurbishment or extension work begins, accurate existing condition drawings allow designers to understand the building and plan works with confidence.

Change of Use

Converting a building to a different use requires accurate as-existing drawings to assess compliance, plan layouts and demonstrate suitability to the planning authority.

Listed Building Consent

Works to listed buildings require detailed existing condition drawings as part of the consent application. Measured surveys provide the accurate base information required.

Asset & Record Drawings

Accurate floor plans and elevations are invaluable for facilities management, estate records and future maintenance planning — particularly where original drawings no longer exist.

Pre-Purchase Surveys

Verify the actual size and layout of a building before committing to a purchase or lease — particularly useful for commercial property acquisitions.

Frequently Asked Questions

Common Questions

This depends on the size and complexity of the building. A typical residential property can be surveyed in half a day to a full day. Larger commercial buildings may require multiple site visits. We'll give you a clear time estimate when you enquire.
For internal surveys we need access to all areas to be measured — including roof spaces and basements if required. We coordinate access requirements with you ahead of the site visit to ensure the survey can be completed efficiently in a single visit wherever possible.
Drawings are typically produced at 1:50 for floor plans and sections, and 1:100 for elevations and site plans. We can produce at alternative scales if your project requires it — just let us know at the outset.
Yes. Listed and historic buildings can be surveyed using appropriate methods. Where the building has complex geometry or irregular features, we can incorporate 3D laser scanning to ensure complete and accurate capture.
Yes. All drawings are delivered in DWG format, which is compatible with AutoCAD, BricsCAD, Revit and most other CAD and design applications. PDF versions are also provided for reference and printing.
Turnaround is agreed at the start of each project. For most measured building surveys, we aim to issue drawings within 5–10 working days of the site visit. Faster turnaround is available — please mention this when enquiring.

Request a Measured Survey Quote

Tell us about your project and we'll get back to you with a clear, competitive quote. We aim to respond to all enquiries within 1 working day.

✓  Free, no-obligation quote
✓  Clear scope agreed upfront
✓  UK Wide Coverage

We respond to all enquiries within 1 working day.